Voir le projet

Challendin

Revenir à la liste
Projet Construit
Catégorie MixteRésidentiel
Lieu Chêne-Bougeries
Date 2014 - 2025

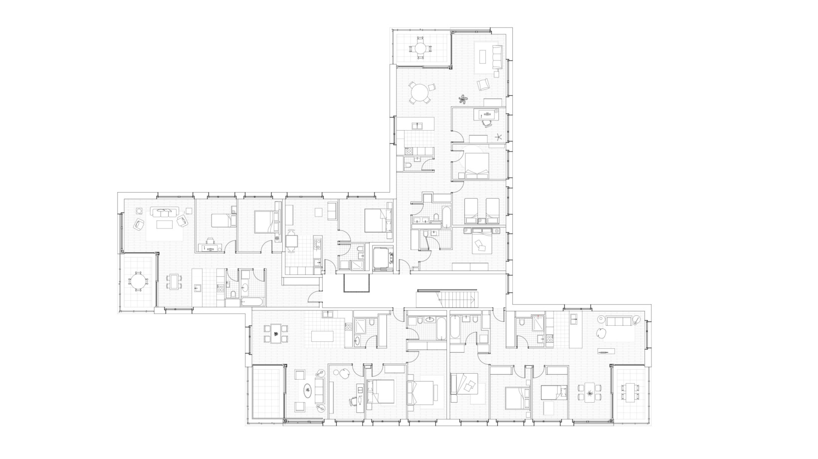
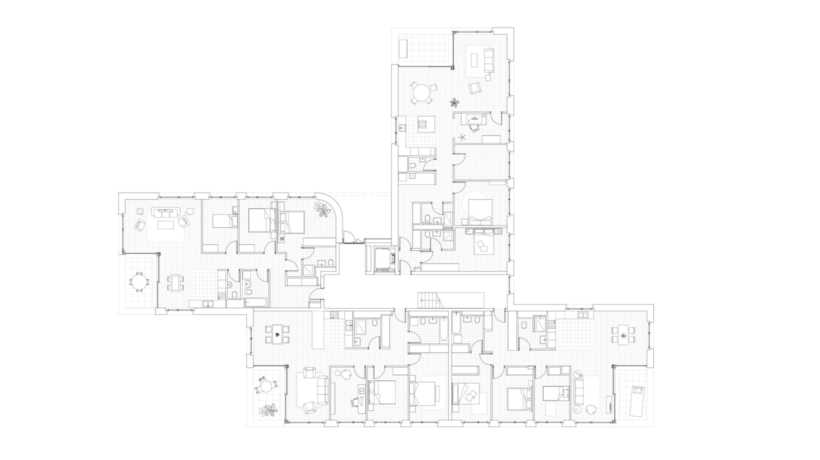
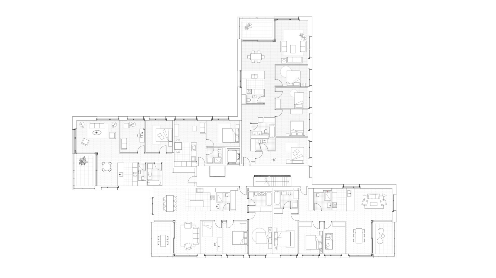
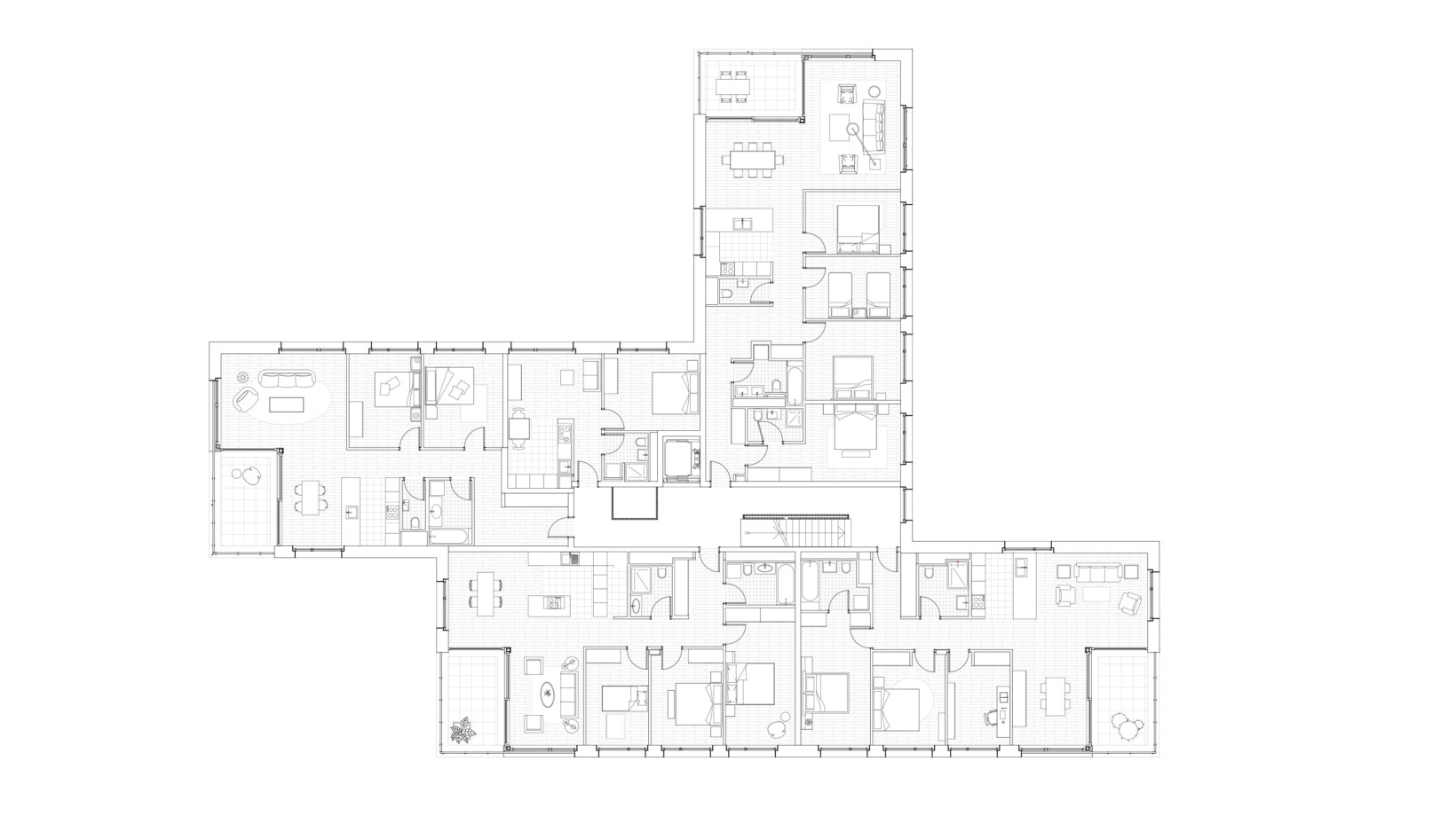
Un premier bâtiment s’installe derrière un écran végétal assurant la continuité verte sur la route de Chêne, il crée un espace de transition et participe à l’assainissement phonique de l’ensemble du site. Il accueille sur deux niveaux des activités en lien avec la proche clinique des Grangettes (salles de consultation) et quelques commerces de proximité. Cette galette est surmontée de trois bâtiments de logements qui créent un filtre sur le reste du site. L’ensemble s’articule par une place collective à la villa patrimoniale.

Sur l’arrière, l’intégration des nouveaux logements se traduit par une organisation de bâtiments en étoiles à trois branches, inscrits dans un parc paysager largement arborisé. Ce parti favorise les échappées visuelles, exclu les fronts bâtis et valorise les espaces collectifs de verdure. La volumétrie est allégée par un dernier niveau organisé en attique avec retrait de façade.
Le projet s’inscrit dans une volonté affirmée de dialogue entre les volumes bâtis et le paysage vert reconstitué qui en constitue son écrin. Un dispositif de cheminements pour piétons et vélos assure une perméabilité à l’ensemble du parc

Le projet s’oriente par ailleurs vers un concept de quartier durable.

Haut de page
Découvrez le projet
Les Fontaines